
プロジェクト概要
大空間避難所でのプライバシー空間を確保するためのシステムであるダンボールシェルター。震災当初、避難所でのプライバシーを保ちづらい辛さを解消したいという思いから、建築学部建築学科の鈴木敏彦教授が開発しました。
現在は、開発当初よりもバリエーションを増やし、縦型・横型・多目的型と用途に応じた3タイプを備え、タイプ3では、設置・収納がより手軽にコンパクトになっています。
また、大空間を一度に簡単に間仕切ることができる「クロスウォールシステム」も新たに開発。ダンボールシェルターの進化に加え、有事に備え、スピーディーに適時適所へシェルターを配送するネットワークの整備が進んでいます。
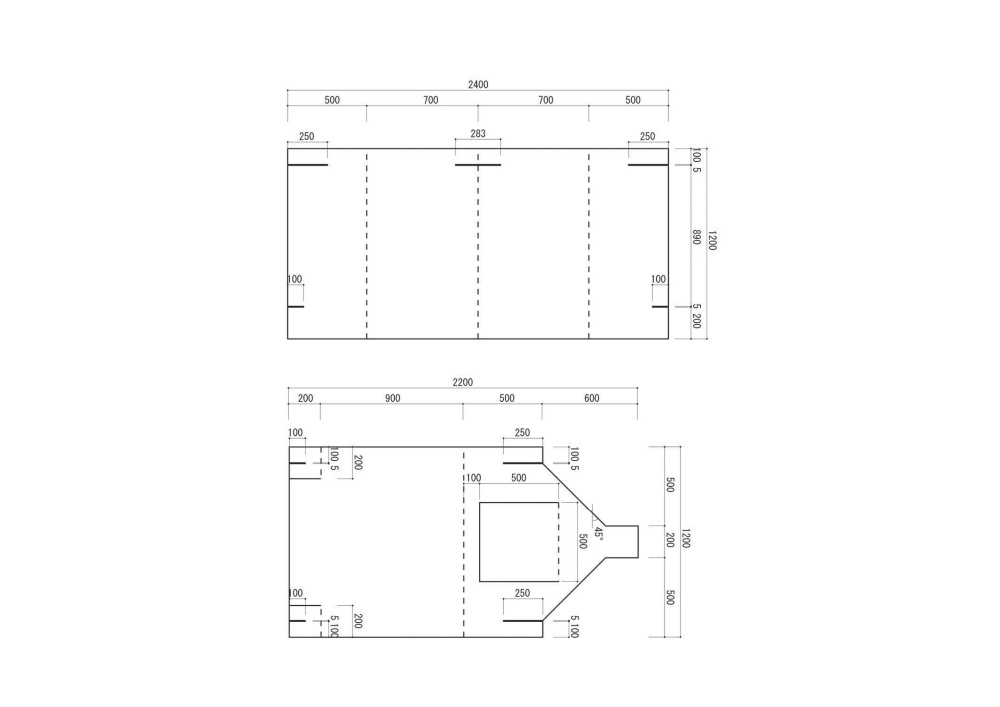
4つのかたちを備えたダンボールシェルター
それぞれの特徴・使い方・図面をご紹介します。
2025/01/10 (金)
たま未来連携EXPOで、本学の産学連携事例を展示紹介
たま未来連携EXPO(主催:東京都)が、たま未来メッセで12月19日から20日に開催され、本学のダンボールシェルターが、産学連携の好例として紹介されました。
2024/11/20 (水)
企画展「避難所へ行ってみよう」でダンボールシェルターを展示しています
11月14日から埼玉県防災学習センターで開催中の企画展「避難所へ行ってみよう」で鈴木敏彦教授(建築デザイン学科)が開発したダンボールシェルターを展示しています。
2024/03/25 (月)
強化ダンボールシェルターの組み立て方法を説明した動画を公開しました
鈴木敏彦教授(建築デザイン学科)は、強化ダンボールシェルターを被災地で避難生活を送る方々へ提供しています
2024/02/16 (金)
能登半島地震の避難生活の方々へ、ダンボールシェルター設置の支援をおこなってます
鈴木敏彦教授(建築デザイン学科)は、2月7日、強化ダンボールシェルター14セットを珠洲市に持ち込みました。
- 使用済みの梱包用ダンボールを用いて制作されたダンボールシェルター
2020/11/11 (水)
兵庫県建築士会の被災宿泊体験で鈴木敏彦教授(建築学科)開発のダンボールシェルターを活用
11月7日(土)に兵庫県香美町の体育館で実施された被災宿泊体験で、鈴木敏彦教授(建築学科)が開発したダンボールシェルターが活用されました。
2016/10/25 (火)
「八王子市総合防災訓練」にダンボールシェルターを出展しました
10月23日、工学院大学は、「平成28年八王子市総合防災訓練」に出展参加し、「ダンボールシェルター3」と熊本地震支援活動紹介パネルを展示しました。
本会場の八王子市立第二中学校では、発災対応型訓練をはじめとする訓練と、テントブースでの炊き出し試食などが行われました。工学院大学は、テントブースに「ダンボールシェルター3」の実物を設置し、熊本など被災地への搬入・活用の様子をパネルで紹介しました。来賓の方々、訓練関係者の関心は非常に高く、9:00から2時間ほどの間に、約100名が見学に訪れました。子ども達がダンボールシェルターの中に入り、楽しく体験する和やかな雰囲気がありつつも、見学者からは、利用できる場所や、入手方法などの質問が相次ぎました。
工学院大学と八王子市は、2015年12月に包括連携に関する協定を締結しました。今回の総合防災訓練参加も、この協定に関わる活動の一環です。八王子市に最初に開設した大学として、防災減災の取り組みへの推進と、学生の地域活動への参加が期待されています。
2016/05/18 (水)
熊本地震の避難所に鈴木敏彦が開発したプライバシーを守るダンボールシェルターを提供
工学院大学(学長:佐藤 光史、所在地:東京都新宿区/八王子市)の鈴木 敏彦教授(建築学部 建築学科)が東日本大震災の被災地支援の一環で開発した「ダンボールシェルター」を、同大卒業生らで組織する校友会および建築学部同窓会が中心となり、2016年4月14・16日に発生した熊本地震の避難所に届ける活動を行いました。
■避難所での生活を少しでも快適に
■避難所での生活を少しでも快適に
4月29日(金)、ダンボールシェルターの第1便が、益城町保健福祉センターに届けられました。
このシェルターの設置は、工学院大学 建築学部同窓会の寄付金を元に活動が進められ、また、地震の影響で道路や鉄道などの物流網が寸断される中、一般社団法人 工学院大学校友会 熊本県支部および戸田建設株式会社九州支店の搬入支援を得て実現しました。
避難所に設置されたシェルターは、避難者や支援者らから大きな反響を得ています。
今後も行政主導のもと、複数の避難所に搬入・設置していく予定です。
<参考:ダンボールシェルター搬入・設置実績等>
4月29日(金) 熊本県上益城郡益城町 20個 / 熊本県阿蘇郡西原村 15個
4月30日(土) 熊本県阿蘇郡南阿蘇村 20個 / 熊本県阿蘇市 25個
5月16日(月) 熊本県八代市 ※1 50個 / 熊本県上益城郡嘉島町 ※2 10個
※1 熊本県八代市には、ダンボールシェルター50個に加え、クロスウォールシステム50セット100箱を搬入。
※2 熊本県上益城郡嘉島町には、ダンボールシェルター10個に加え、ダンボールベッド10セットを搬入。
*今後の取り組みとして、以下の支援を予定しています
「クロスウォールシステム(※)」50セット100箱
「ダンボールシェルター3」20個(継続分)
(※) クロスウォールシステム…体育館等に避難する被災者のための囲い。広さは、2.1m×2.1m(2.7畳分)。壁の高さは、80cmと160cm。
2016/04/28 (木)
鈴木敏彦教授が開発したダンボールシェルターを熊本地震の避難所各地へ搬入
「ダンボールシェルター」は、鈴木敏彦教授(建築学部建築学科)が2011年の東日本大震災の時に開発しました。今回は、その後の改良を重ねた「ダンボールシェルター3」は体育館などに避難している被災者のための個室で、寝室・更衣室・避難トイレ・診療室などの用途に使用できます。
今回、この「ダンボールシェルター3」を工学院大学校友会・工学院大学建築学部同窓会が中心となって避難所へ届ける活動をしています。建築学部同窓会からの寄付金を元に生産し、物流支援は戸田建設株式会社CSR・九州支店のサポートを受け、現地での設置・制作支援を校友会・熊本支部が行います。
<搬入スケジュールなど>
- 搬入日:4/29(金)、4/30(土)
- 搬入先及び搬入個数:合計80個
4/29(金)
熊本県上益城町益城町 20個 (校友会が設置・制作支援)
熊本県阿蘇郡西原村 15個
4/30(土)
熊本県阿蘇郡南阿蘇村 20個
熊本県阿蘇市 25個
- 搬入内容:「ダンボールシェルター3」
また、今後の取り組みとして、以下の支援も準備しています。
- 「クロスウォールシステム」100セット200箱(新規分)
- 「ダンボールシェルター3」80個(継続分)
2011/04/05 (火)
ダンボールシェルター
「ダンボールシェルター」は、鈴木敏彦教授(建築学部建築学科)が2011年の東日本大震災の時に開発しました。今回は、その後の改良を重ねた「ダンボールシェルター3」は体育館などに避難している被災者のための個室で、寝室・更衣室・避難トイレ・診療室などの用途に使用できます。
- ダンボールシェルター 1:体育館等に避難している被災者のための一時的な寝室。暖かくプライベートな空間を提供する小さな家です。
- ダンボールシェルター 2:体育館等に避難している被災者 更衣室や避難トイレのスペースを提供します。
- ダンボールシェルター 3:体育館等に避難している被災者のための個室。寝室、更衣室、避難トイレ、診療室などの用途に使用できます。
- クロスウォールシステム:体育館等に避難する被災者のための囲い。 広さは、2.1m x 2.1m(2.7畳分)。壁の高さは、80cmと160cm。 閉鎖的な印象を与えないため、丸い穴を開けました。






















